Projet SEVOL Restaurant Figaro
Le bar-restaurant Figaro, situé dans un quartier historique, a fait l’objet d’une rénovation complète de ses 120 m² d’espace. L’objectif était de transformer un lieu brut en un restaurant accueillant, moderne et fonctionnel, tout en respectant les codes de la restauration. Nous avons repensé chaque détail : l’agencement, les matériaux et l’éclairage, pour créer une expérience client premium.
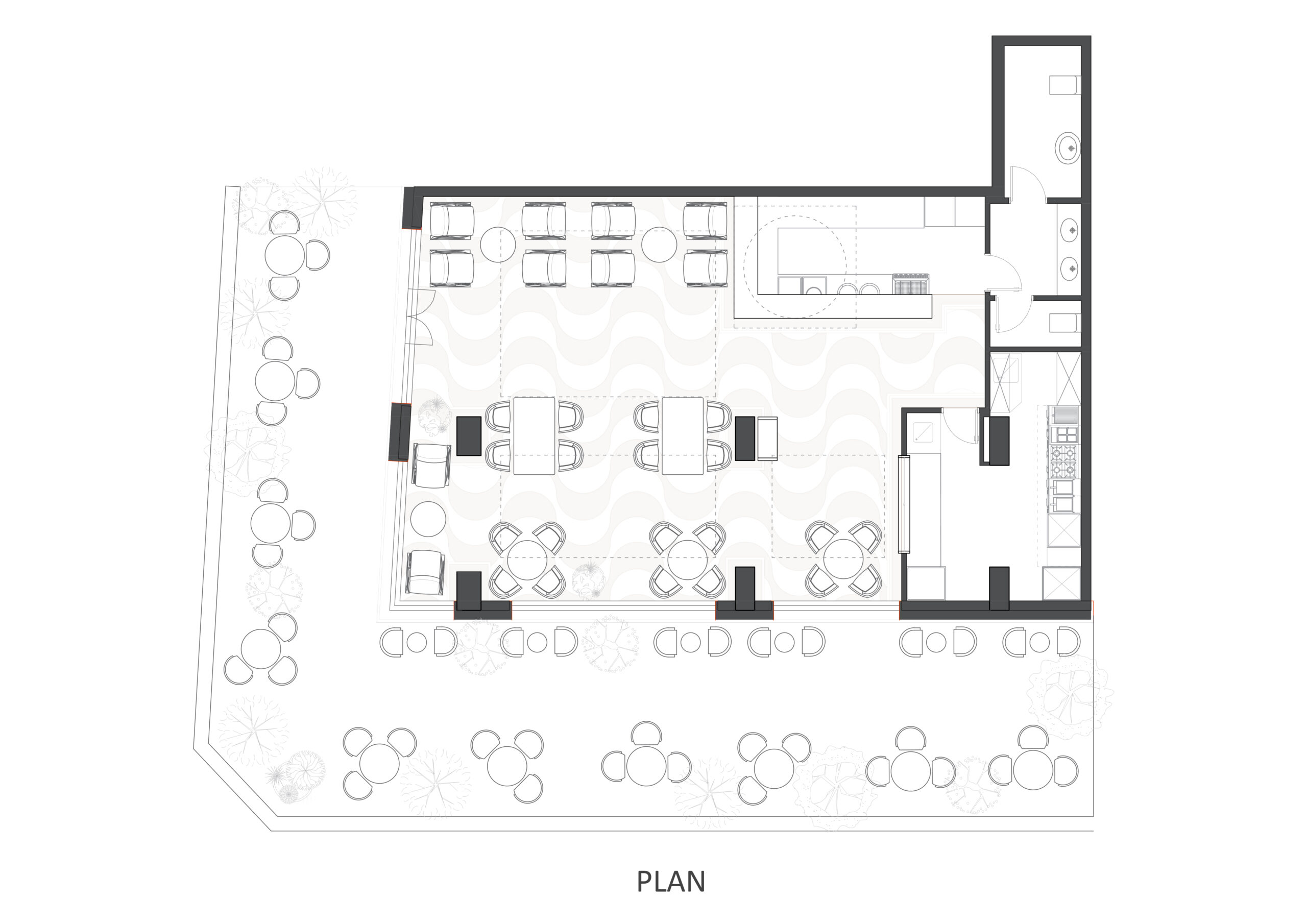
Histoire du projet
À l’origine, le lieu était une vaste dalle en béton brut. Les fondateurs de Figaro souhaitaient une décoration sophistiquée évoquant la Méditerranée et la mémoire locale. Notre intervention a commencé par un étude approfondie du lieu. Nous avons conçu deux monolithes (deux volumes en forme de « rochers »), qui structurent l’espace intérieur. L’un est planté de plantes grasses pour rappeler le climat sudiste, l’autre abritera le bar ou des rangements techniques. Ces volumes créent des repères forts et orientent naturellement le plan du restaurant.
- Circulation fluide : Nous avons tracé un niveau horizontal continu à 2,2 m de hauteur. Ce « fil d’horizon » invisible relie l’ensemble des espaces (entrée, bar, salle) et guide la circulation de façon intuitive. Il est matérialisé par une série de grands luminaires sphériques suspendus, qui rythment l’espace et apportent un éclairage doux et uniforme.
- Volumes et éclairage : Le bar est dessiné comme un cube lumineux suspendu à 2,2 m. Il délimite l’îlot de service sans fermer la salle et crée un éclairage d’ambiance. Autour, la salle à manger s’articule en îlots de tables autour des deux « rochers ». Ces îlots offrent des ambiances variées (plus intimes ou plus conviviales) sans cloisonner, tout en maintenant une vue dégagée grâce à la hauteur du plafond.
- Matériaux et ambiance : Pour renforcer l’esprit méditerranéen, nous avons travaillé des finitions naturelles. On note le contraste pierre/bois : murs clairs, sol en dalles grises, tables en bois massif, murs de pierre, touches vertes sur les banquettes et objets de déco. L’éclairage est tamisé pour l’ambiance soirée, avec quelques touches « jaune-oranger » sur le bar rappelant le soleil couchant.
Considérations techniques & artisans
La rénovation a impliqué plusieurs étapes clés et métiers :
- Maçonnerie & Électricité : Pose des cloisons intérieures et du mobilier fixe (bar, bars, banques). Intégration d’un éclairage indirect et de spots variés, avec pilotage pour différents scénarios (de la journée à l’ambiance soir).
- Menuiserie sur mesure : Fabrication du bar suspendu, des étagères, des banquettes, et de détails en bois (revêtement mural partiel, etc.). Les artisans ont utilisé du bois brut teinté et traité contre les tâches.
- Mosaïque à la main : Le sol principal est composé de dalles de grès cérame réalisées en pièces détachées assemblées artisanalement pour un effet de surface « totale ». Cette méthode crée moins de joints visibles, plus hygiénique (moins de coins à nettoyer) et esthétique.
- Plomberie & ventilation : Reprise complète des installations pour la cuisine (fumées, extraction, évier, lave-vaisselle) et mise en place d’une ventilation haute performance conforme aux normes ERP et hygiène alimentaire.
- Finitions & Accessibilité : Choix de matériaux résistants (anti-rayures, faciles à nettoyer). Pentes d’accès et toilettes PMR installées conformément à la loi (accessible aux personnes handicapées).
Ces étapes ont été coordonnées pour respecter les normes en vigueur en restauration (ERP type N) et garantir confort, sécurité et facilité d’entretien. Par exemple, la cuisine professionnelle est traitée au même titre qu’une cuisine centrale : matériaux ignifuges, murs lisses, évacuation des fumées optimisée. La propreté est facilitée par l’utilisation de carrelage grand format (moins de joints) et de surfaces antibactériennes.
À retenir pour un projet de restaurant
Construire ou rénover un restaurant ne se limite pas à la déco : il faut penser aux contraintes réglementaires et à l’expérience client. Parmi les éléments cruciaux :
- Circulation & flux clients : Prévoyez suffisamment d’espace entre les tables et vers les issues. Les allées doivent respecter les normes d’accessibilité PMR (pentes douces, espaces de manœuvre).
- Hygiène et sécurité : Choisissez des matériaux faciles à nettoyer (carrelage, inox), anti-feu et antibactériens. Mettre en place des procédures HACCP (plans de nettoyage, gestion des déchets).
- Ventilation et extraction : Installez une hotte performante et un système aération séparé pour la cuisine afin d’éviter les odeurs en salle. Les normes imposent souvent des filtres spéciaux et des débits minimum.
- Ambiance & branding : La cohérence design doit servir l’atmosphère du lieu (chaleureux, moderne, cosy…). Le choix de l’éclairage, des couleurs et des textures contribue largement à l’ambiance.
- Qualité artisanale : Les touches artisanales (mosaïque, menuiserie fine, ferronnerie) apportent un cachet unique. Mais gardez l’équilibre coût/effort : travaillez ces éléments sur les zones clés visibles (bar, sol entrée, murs d’accent).
En résumé, la rénovation du Figaro démontre qu’une vision claire (structure, lumière, matériaux) associée à une exécution rigoureuse donne un lieu à la fois accueillant et performant. Chez SEVOL, nous nous assurons que chaque détail va dans le sens de l’usage du lieu et de la mise aux normes.
